Streamlining Developments
A simpler way to get developments out of the ground.
Developer Pricing
Prices for the Self-Builder, small or large developer for any plot type from flat to detached dwelling.
Self-Build
From
£1,450
This is for homeowners or developers looking to errect a single property on a single plot
Developer 1
From
£1,200
For developers who have at least 2 Plot Types, but no more than 10 plots in total
Developer 2
From
£950
For larger developers who have at least 10 Plot Types but no more than 75 plots in total
What's Included (And What's Not)
We believe in complete transparency, that's why we provide a breakdown of everything you can expect to recieve.
Always Included
Marked up floor plans
Marked up Elevations
Marked up Sections
Details at 1:10 scale
Ventilation, heating and u-value calculations
Part M, R and S compliance
We act as your Principal Designer
Professional Indemnity insurance up to £250,000
Includes Submission to the LABC & Site Survey1
Optional Structural Calculations
We engage our preferred Structural Engineer on your behalf and manage the entire process for you. The Structural Report, Drawings and Calculations will be issued to us and will form part of the 'Full Plans' submission2
Perfect for a simplified approach
We always recommend engaging us to provide full support inclusive of the Structural Engineer.
1 If your project falls outside of Hampshire, Dorset, Wiltshire, Surrey or West Sussex we will include the additional survey cost.
2 The cost of the structural engineering package will be added to your fee proposal together with our standard administration fee.
How To Engage Us
A process designed for efficiency.
Instruct
You instruct us to proceed with your application and send us your plans and any other information in DWG, RVT or PDF.
Retainer
We take an initial payment equal to 40% of the final fee, which we hold on account and draw-down at our standard hourly rate.
Production
We produce the documentation needed for your unique application. This varies depending on the number of plots.
Approval
We issue watermarked versions of your documents via a shared drive to varify during the process.
Payments
We invoice every 30 days based on progress or the full final amount due, whichever comes sooner.
Completion
We recieve final payment and submit the application on your behalf as the Principal Designer.

Single Plot Developments
You could be taking your first steps into property development or building your dream home on a new plot, whatever your needs we ensure every aspect of your project is fully compliant. We review and detail your project ensuring full compliance against every applicable element of the Approved Documents, within the 2010 Building Regulations.
Our detailed approach ensures your Building Control application is approved quickly, so you can get started on your project.
At the moment most Local Authorities are quoting 5 Weeks to validate application.

Multiple Plot Developments
You've aquired the site, have gained planning permission and have developed your budget....you're ready to make a start. Speed and efficiency are paramount to ensure you realise your margin and achieve your forecasted revenues. Markets change and deleays could could wipe out your profits.
We have a wealth of expereince and know first-hand the complexities of site development, that's why we're able to translate site requirements quickly and efficiently.
This expereince ensures your development stays on track from the start.
A Few Sample Details
From single plot to larger developments, we provide the detailed plans needed for a smooth approval process.
Typical Site Layout
A floorplan of a typical site layout showing services.
Plot Drainage
A floor plan of typical storm and foul drainage to a plot.
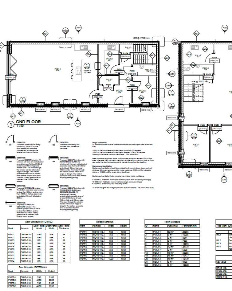
Internal Details
A floor plan of typical detail callouts and door/window types.
Wall Sections
A section of a typical external wall system.
Frequently Asked Questions
Find answers to common questions about our services.
The first step is to contact us with your project details and plans. We will review your information and provide you with a detailed quote and a clear outline of the next steps. There's no obligation at this stage.
The lead-times can vary depending on our workload but typically we work on 7 working days. This depends on the information that's provided.
Our fee covers the production of our documentation and management of the submission. Any fees charged by the council or local authorities for the application itself, or any specialist reports are separate and will be payable directly by you.
We ensure all documentation is compliant, the final approval rests with the local authority. We act as your Principal Designer to ensure the application is as robust as possible, to minimize the need for amendments.
As an architectural practice we engage with our clients at every stage of the development, from the earliest budget planning to post completion. We can provide additional services but we apraise this on a project-by-project basis.
Ready to start your project?
Fill out the form to get in touch, and we'll get back to you as soon as possible for a no-obligation consultation.
Alternatively, email us hello@hamptonarchitectural.co.uk
